Local en Venta con depósito en Lomas de Zamora

USD 620.000 - EN VENTA

Dorrego 307, Temperley, Lomas de Zamora, Bs.As. G.B.A. Sur - Lomas de Zamora
La propiedad indicada se encuentra Reservada
USD 620.000 en venta
Código KP430159
Categoría Locales comerciales
Estado Reservada
Ubicación Dorrego 307
Zona Lomas de Zamora
Barrio Temperley
Localidad Lomas de Zamora, Bs.As. G.B.A. Sur
Tipo de operación En venta
Ambientes 2
Baños 2
Estacionamientos 3
Piso No definido
Pisos en el edificio 2
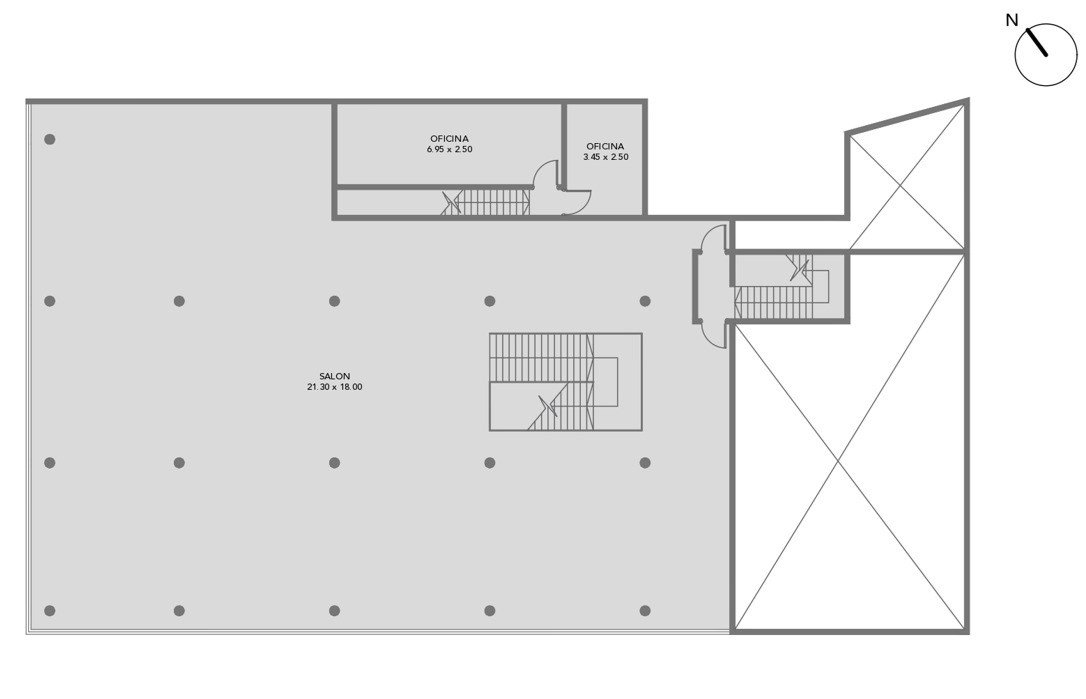
Mts totales (mt²) 800.00
Tamaño terreno (mt²) 800
Ancho terreno (mts) 18.45
Largo terreno (mts) 26
Año de construcción 2002

Descripción

Local en esquina de dos pisos con depósito. Superficie en planta baja de 510 metros. Superficie en primer piso de 288 metros. Depósito de doble altura con portón corredizo. Estacionamiento para cinco autos sobre la vereda. Cuenta con dos baños con vestuarios, dos cocinas y oficina. Calefacción central y aires acondicionados Agua caliente en vestuarios con termotanque a gas Pisos de cerámica en ambos niveles. Actualmente funciona como un local de ventas de muebles de interior e iluminación. Se vende sin renta. Toda la información del aviso, incluyendo medidas, precio, impuestos, servicios, etc. son estimativos, sujetos a modificación y no vinculantes, según lo dispuesto en el art. 973, Cód. Civ. y Com.

27 Visitas al momento

¿Interesado en la propiedad?

Llamenos ó envienos sus datos
+541165058041
WhatsApp

Video

Recorrido virtual