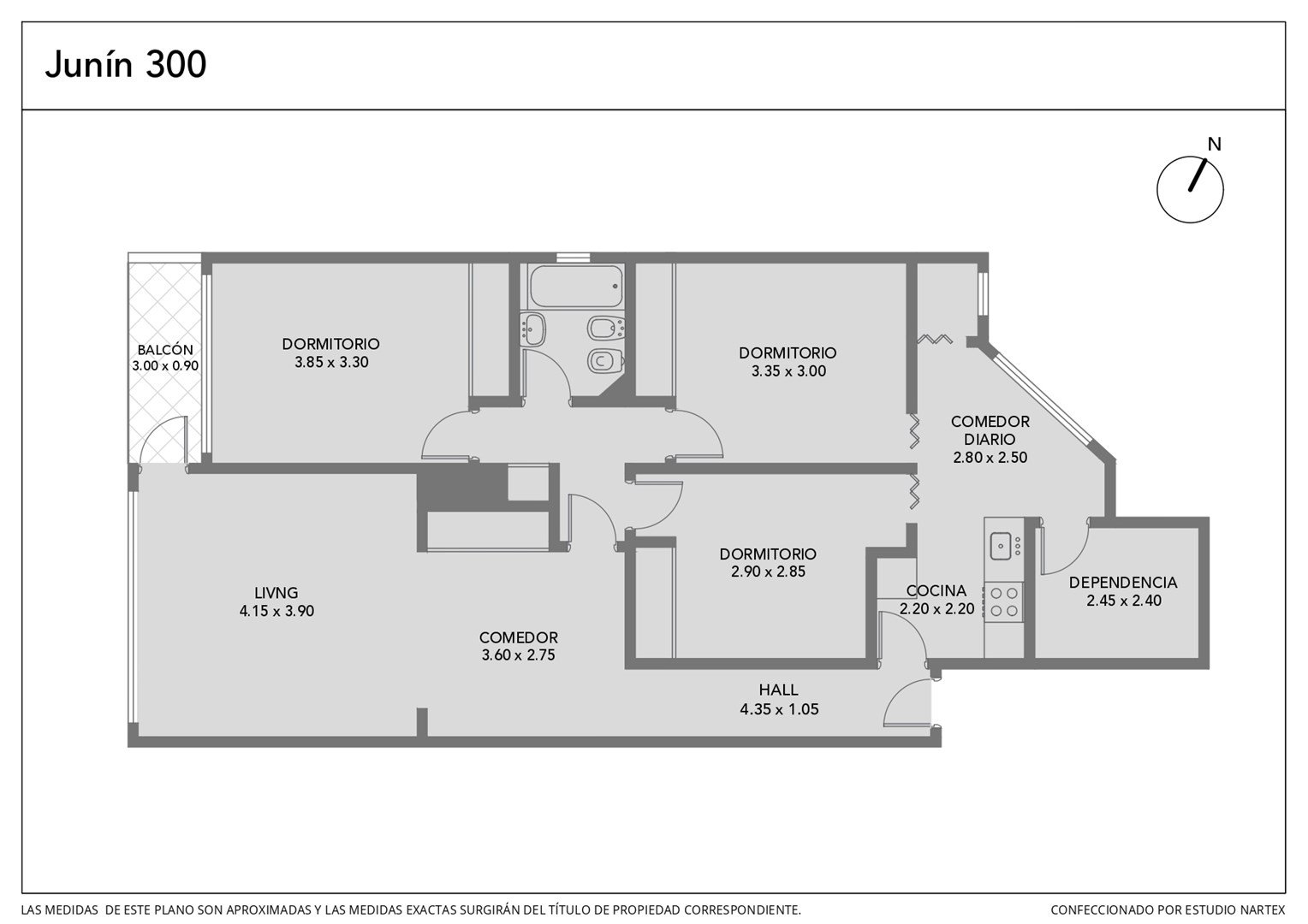
4 ambientes al frente con dependencia

USD 89.000 - EN VENTA

Junin 340, Balvanera, Capital Federal - Balvanera
La propiedad indicada se encuentra Vendida
USD 89.000 en venta
Código KP440092
Categoría Departamentos
Estado Vendida
Ubicación Junin 340
Zona Balvanera
Barrio Balvanera
Localidad Capital Federal, Capital Federal
Tipo de operación En venta
Apto credito
Ambientes 4
Dormitorios 3
Baños 1
Piso 6
Mts totales (mt²) 94.00
Mts cubiertos (mt²) 94
Año de construcción 1975
Expensas usd 45000.00

Descripción

Departamento de 4 ambientes al frente con dependencia. Living comedor con salida al balcón, cocina, lavadero y dependencia. Tres habitaciones con placard empotrado. La principal con vista al frente. Baño completo con bañera. Doble ingreso. Ubicado a metros de Av. Corrientes, con variedad de medios de transporte. - - Toda la información del aviso, incluyendo medidas, precio, impuestos, servicios, etc. son estimativos, sujetos a modificación y no vinculantes, según lo dispuesto en el art. 973, Cód. Civ. y Com. Operación sujeta a que el propietario cumpla con R.G. N° 2371/07 Toda la información del aviso, incluyendo medidas, precio, impuestos, servicios, etc. son estimativos, sujetos a modificación y no vinculantes, según lo dispuesto en el art. 973, Cód. Civ. y Com.

10 Visitas al momento

¿Interesado en la propiedad?

Llamenos ó envienos sus datos
+541165058041
WhatsApp

Video

Recorrido virtual